Официальное опубликование правовых актов
ОФИЦИАЛЬНОЕ ОПУБЛИКОВАНИЕ
Приказ Инспекции по охране объектов культурного наследия Приморского края от 23.11.2020 № 399
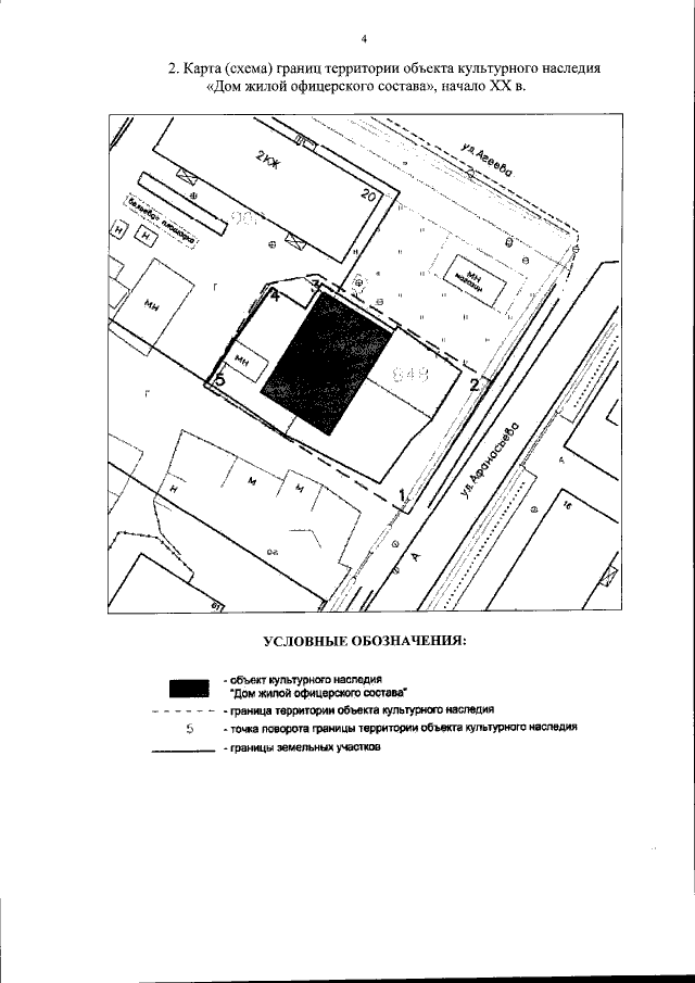
"Об утверждении границ территории объекта культурного наследия регионального значения "Дом жилой офицерского состава", начало XX в., расположенного по адресу (местонахождение): Приморский край, г. Уссурийск, ул. Афанасьева, д. 63 (лит А.) (адрес согласно кадастровым сведениям: Приморский край, г. Уссурийск, ул. Афанасьева, д. 63)"
Номер опубликования: 2501202011240022
Дата опубликования: 24.11.2020
Страница №4 из 4:
Увеличить