Официальное опубликование правовых актов
ОФИЦИАЛЬНОЕ ОПУБЛИКОВАНИЕ
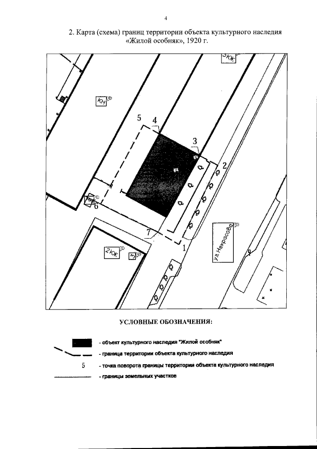
Приказ Инспекции по охране объектов культурного наследия Приморского края от 23.11.2020 № 400
"Об утверждении границ территории объекта культурного наследия регионального значения "Жилой особняк", 1920 г., расположенного по адресу (местонахождение): Приморский край, г. Уссурийск, ул. Некрасова, д. 5"
Номер опубликования: 2501202011240006
Дата опубликования: 24.11.2020
Страница №4 из 4:
Увеличить