Официальное опубликование правовых актов
ОФИЦИАЛЬНОЕ ОПУБЛИКОВАНИЕ
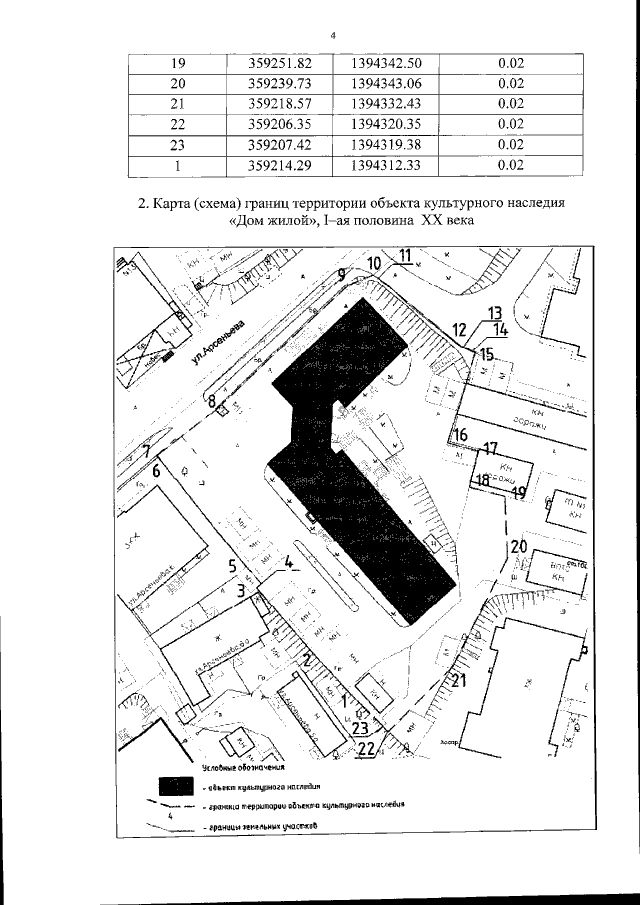
Приказ Инспекции по охране объектов культурного наследия Приморского края от 28.10.2019 № 267
"Об утверждении границ территории объекта культурного наследия регионального значения "Дом жилой", I–ая половина XX века, расположенного по адресу (местонахождение): Приморский край, г. Владивосток, ул. Арсеньева, д. 8"
Номер опубликования: 2501201910310005
Дата опубликования: 31.10.2019
Страница №4 из 4:
Увеличить