Официальное опубликование правовых актов
ОФИЦИАЛЬНОЕ ОПУБЛИКОВАНИЕ
Постановление Администрации Приморского края от 16.01.2019 № 12-па
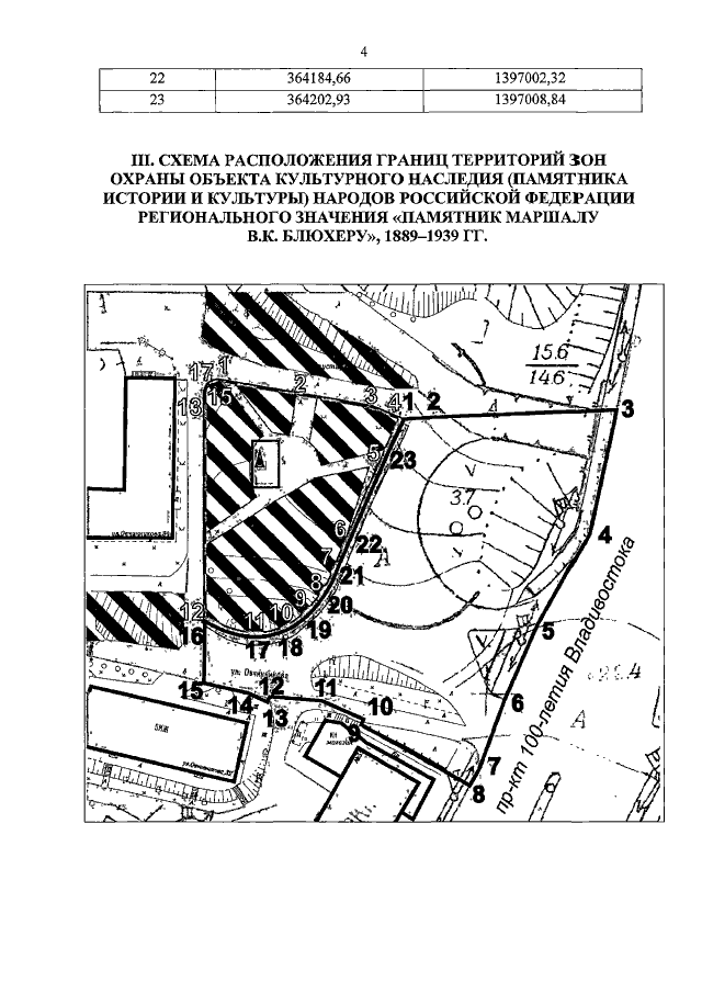
"Об установлении зон охраны объекта культурного наследия (памятника истории и культуры) народов Российской Федерации регионального значения "Памятник маршалу В.К. Блюхеру", 1889–1939 гг., утверждении требований к градостроительным регламентам в границах территорий данных зон"
Номер опубликования: 2500201901170002
Дата опубликования: 17.01.2019
Страница №6 из 10:
Увеличить