Официальное опубликование правовых актов
ОФИЦИАЛЬНОЕ ОПУБЛИКОВАНИЕ
Постановление Правительства Красноярского края от 24.10.2023 № 843-п
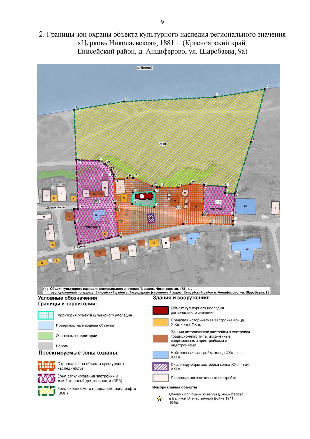
"Об установлении зон охраны объектов культурного наследия регионального значения, расположенных в Енисейском районе Красноярского края, утверждении требований к градостроительным регламентам в границах территорий данных зон"
Номер опубликования: 2400202311030006
Дата опубликования: 03.11.2023
Страница №11 из 35:
Увеличить