Официальное опубликование правовых актов
ОФИЦИАЛЬНОЕ ОПУБЛИКОВАНИЕ
Приказ администрации Краснодарского края от 22.08.2022 № 730-КН
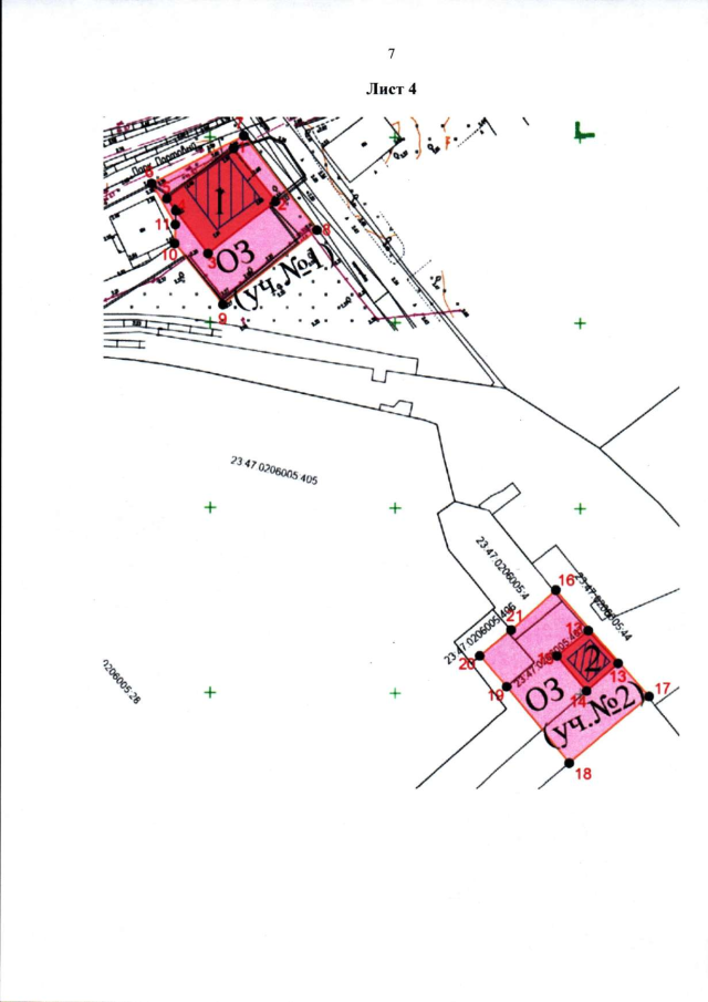
"Об установлении зон охраны, утверждении режимов использования земель и требований к градостроительным регламентам в границах территорий данных зон объекта культурного наследия регионального значения "Комплекс жилых и общественных зданий в портовой зоне", конец ХIХ в. - середина ХХ в., Краснодарский край, г. Новороссийск, в границах ул. Портовой, 10, ул. Портовой, 10 а, лит. А, ул. Портовой, 12 - 14 - 16 и ул. Элеваторной, 2 - 4, лит. А, Б, Б1, В, Д, ул. Портовой, 17 а, 18, 20, 40, лит. А, ул. Портовой 24, лит. Б, с входящими в его состав объектами культурного наследия регионального значения - памятниками и внесении изменений в некоторые приказы администрации Краснодарского края"
Номер опубликования: 2301202208290003
Дата опубликования: 29.08.2022
Страница №12 из 44:
Увеличить