Официальное опубликование правовых актов
ОФИЦИАЛЬНОЕ ОПУБЛИКОВАНИЕ
Приказ администрации Краснодарского края от 09.12.2021 № 933-КН
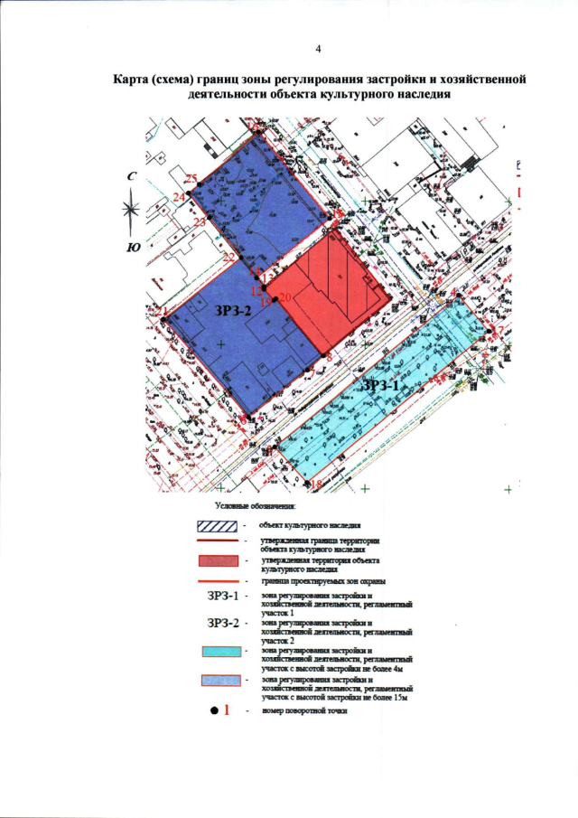
"Об утверждении зон охраны, режимов использования земель и требований к градостроительным регламентам в границах территорий данных зон объектов культурного наследия регионального значения "Дом удельного ведомства Абрау-Дюрсо", 1904 г., Краснодарский край, г. Новороссийск, угол ул. Новороссийской Республики, 13 и ул. Коммунистической, 59, лит. А; "Дом доходный торговца К.И. Цертоса. Здесь размещались редакция газеты "Черноморское побережье", отделение газеты "Кубань", 1890 г., 1906-1907 годы, Краснодарский край, г. Новороссийск, ул. Новороссийской Республики, 11, лит. Б; "Дом жилой городского головы А.А. Никулина. Здесь ставил любительские спектакли режиссер В.Э. Мейерхольд (1874-1940), жил заслуженный деятель искусства РСФСР художник-баталист И.А. Владимиров (1870-1947)", 1890 г., 1920-е годы, Краснодарский край, г. Новороссийск, угол ул. Советов, 45 и ул. Новороссийской Республики, 9, лит. А"
Номер опубликования: 2301202112150001
Дата опубликования: 15.12.2021
Страница №7 из 42:
Увеличить