Официальное опубликование правовых актов
ОФИЦИАЛЬНОЕ ОПУБЛИКОВАНИЕ
Приказ администрации Краснодарского края от 20.05.2021 № 294-КН
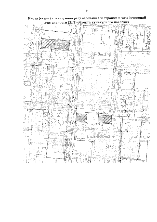
"Об утверждении границ и режима использования территории, установлении зон охраны, утверждении режимов использования земель и требований к градостроительным регламентам в границах территорий данных зон объекта культурного наследия регионального значения "Ансамбль Преображенской церкви", 1840 г., конец XIX в., Краснодарский край, г. Краснодар, ст ца Елизаветинская, угол ул. Новой, 46 и ул. Октябрьской, 38, угол ул. Новой, 46 и ул. Комсомольской, ул. Октябрьская, а также входящих в его состав объектов культурного наследия: "Здание церковно-приходской школы со сторожкой", конец XIX в., Краснодарский край, г. Краснодар, ст-ца Елизаветинская, ул. Октябрьская, "Дом жилой священников Ивана и Леонтия Гливенко (отца и сына)", 1840 г., Краснодарский край, г. Краснодар, ст ца Елизаветинская, угол ул. Новой, 46 и ул. Октябрьской, 38 и "Дом жилой священника Листопадова", конец XIX в., Краснодарский край, г. Краснодар, ст-ца Елизаветинская, угол ул. Новой, 46 и ул. Комсомольской"
Номер опубликования: 2301202105270003
Дата опубликования: 27.05.2021
Страница №26 из 39:
Увеличить