Официальное опубликование правовых актов
ОФИЦИАЛЬНОЕ ОПУБЛИКОВАНИЕ
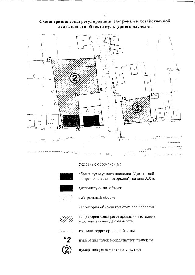
Приказ администрации Краснодарского края от 17.07.2019 № 108-КН
"Об утверждении границ и режима использования территории, а также зон охраны и требований к градостроительным регламентам в границах территорий указанных зон объекта культурного наследия регионального значения "Дом жилой и торговая лавка Говоркова", начало ХХ в., Краснодарский край, Мостовский район, ст-ца Ярославская, у л. Первомайская, 39"
Номер опубликования: 2301201907240005
Дата опубликования: 24.07.2019
Страница №9 из 23:
Увеличить