Официальное опубликование правовых актов
ОФИЦИАЛЬНОЕ ОПУБЛИКОВАНИЕ
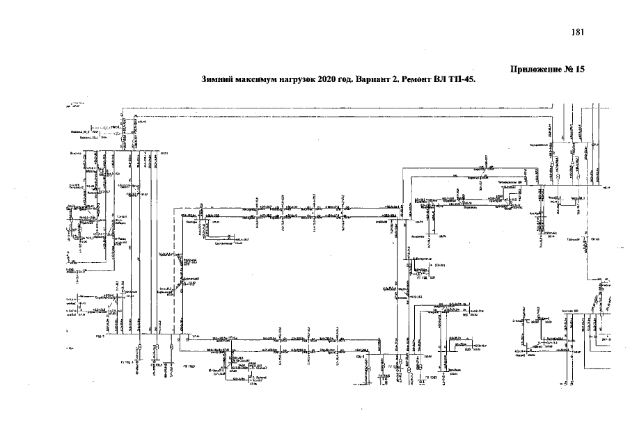
Указ Губернатора Алтайского края от 30.04.2019 № 72
"Об утверждении схемы и программы "Развитие электроэнергетики Алтайского края" на 2020 – 2024 годы"
Номер опубликования: 2200201905070002
Дата опубликования: 07.05.2019
Страница №181 из 444:
Увеличить