Официальное опубликование правовых актов
ОФИЦИАЛЬНОЕ ОПУБЛИКОВАНИЕ
Приказ Министерства культуры, по делам национальностей и архивного дела Чувашской Республики от 12.05.2022 № 01-05/275
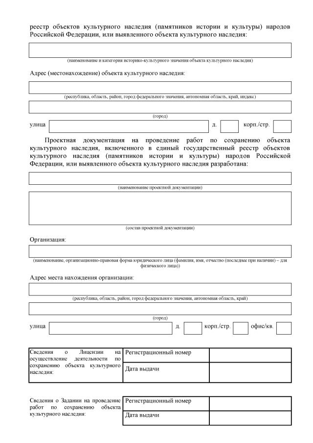
"Об утверждении Административного регламента Министерства культуры, по делам национальностей и архивного дела Чувашской Республики по предоставлению государственной услуги "Согласовывает проектную документацию на проведение работ по сохранению объекта культурного наследия (памятника истории и культуры) федерального значения (за исключением отдельных объектов культурного наследия федерального значения, перечень которых утверждается Правительством Российской Федерации), объекта культурного наследия регионального (республиканского) значения, выявленного объекта культурного наследия"
(Зарегистрирован 23.06.2022 № 7788)
Номер опубликования: 2101202206270004
Дата опубликования: 27.06.2022
Страница №21 из 23:
Увеличить