Официальное опубликование правовых актов
ОФИЦИАЛЬНОЕ ОПУБЛИКОВАНИЕ
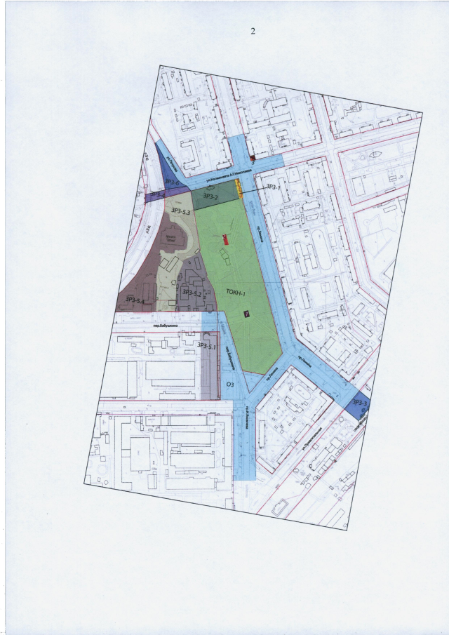
Постановление Кабинета Министров Чувашской Республики от 08.11.2017 № 447 "Об утверждении границ объединенной зоны охраны объекта культурного наследия федерального значения "Памятник В.И. Чапаеву", объектов культурного наследия регионального (республиканского) значения "Дом, в котором родился и жил Василий Иванович Чапаев", "Памятный знак летчику-космонавту А.Г. Николаеву, скульптор Брындин А.К., архитектор Орешников А.Б.", особых режимов использования земель и требований к градостроительным регламентам в границах территории данной зоны"
Номер опубликования: 2100201711100011
Дата опубликования: 10.11.2017
Страница №4 из 36:
Увеличить