Официальное опубликование правовых актов
ОФИЦИАЛЬНОЕ ОПУБЛИКОВАНИЕ
Постановление Правительства Удмуртской Республики от 28.11.2025 № 702
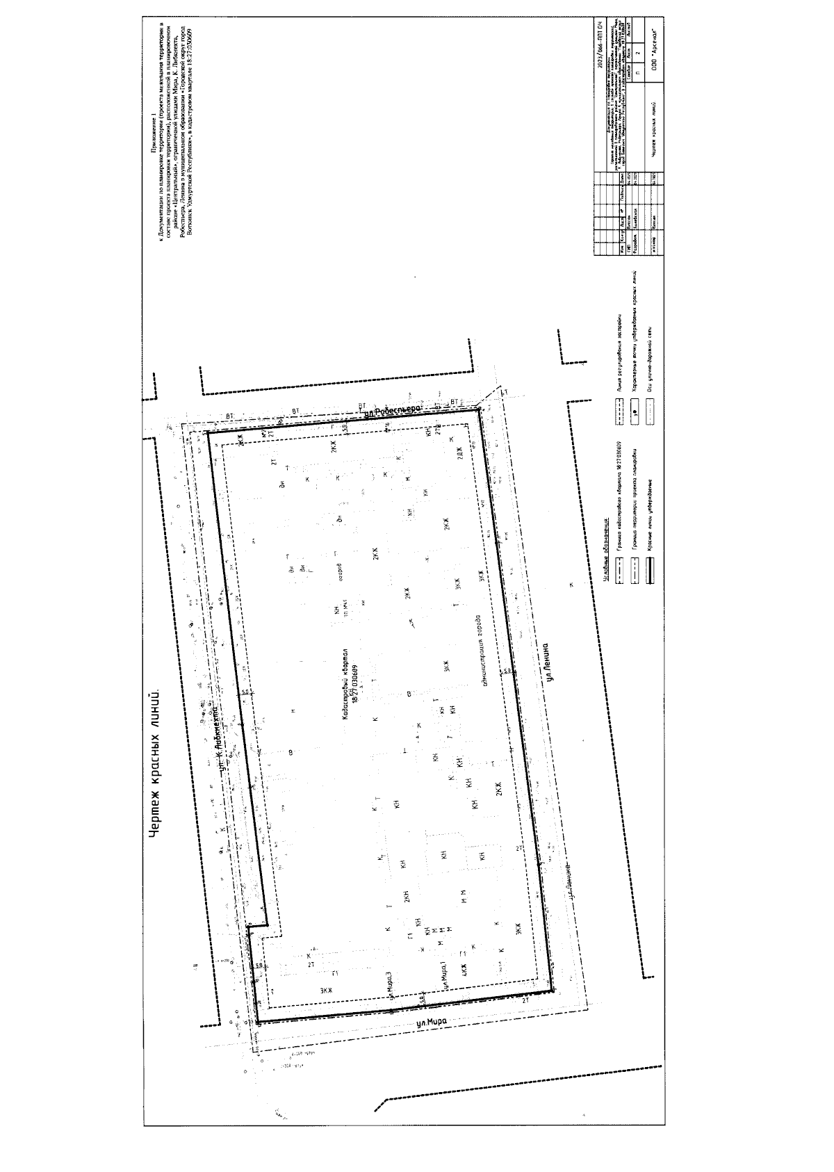
"Об утверждении Документации по планировке территории (проекта межевания территории в составе проекта планировки территории), расположенной в планировочном районе "Центральный", ограниченной улицами Мира, К. Либкнехта, Робеспьера, Ленина в муниципальном образовании "Городской округ город Воткинск Удмуртской Республики", в кадастровом квартале 18:27:030609"
Номер опубликования: 1800202512040004
Дата опубликования: 04.12.2025
Страница №13 из 15:
Увеличить