Официальное опубликование правовых актов
ОФИЦИАЛЬНОЕ ОПУБЛИКОВАНИЕ
Постановление Правительства Удмуртской Республики от 22.07.2025 № 409
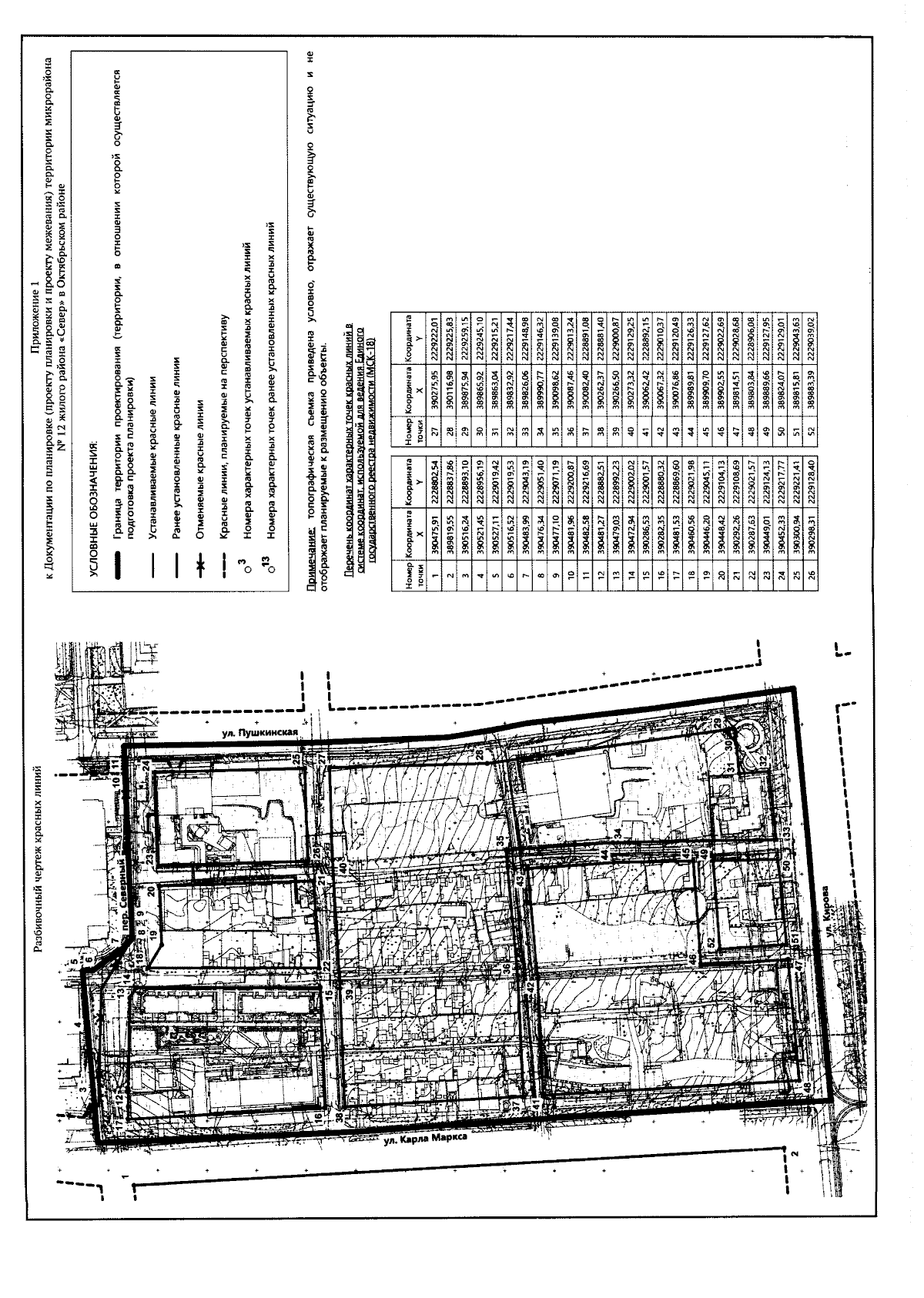
"О внесении изменения в документацию по планировке (проект планировки и проект межевания) территории микрорайона № 12 жилого района "Север" в Октябрьском районе, утвержденную постановлением Администрации города Ижевска от 12 июля 2013 года № 784 "Об утверждении документации по планировке (проекта планировки и проекта межевания) территории микрорайона № 12 жилого района "Север" в Октябрьском районе"
Номер опубликования: 1800202507290003
Дата опубликования: 29.07.2025
Страница №48 из 50:
Увеличить