Официальное опубликование правовых актов
ОФИЦИАЛЬНОЕ ОПУБЛИКОВАНИЕ
Постановление Правительства Удмуртской Республики от 24.12.2024 № 705
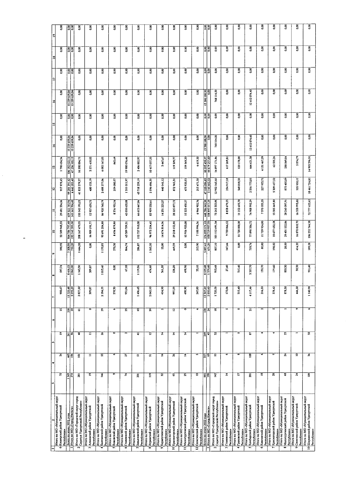
"О внесении изменений в постановление Правительства Удмуртской Республики от 28 марта 2019 года № 102 "Об утверждении Региональной адресной программы по переселению граждан из аварийного жилищного фонда в Удмуртской Республике на 2019 – 2025 годы"
Номер опубликования: 1800202412280016
Дата опубликования: 28.12.2024
Страница №30 из 34:
Увеличить