Официальное опубликование правовых актов
ОФИЦИАЛЬНОЕ ОПУБЛИКОВАНИЕ
Постановление Правительства Удмуртской Республики от 12.09.2016 № 388
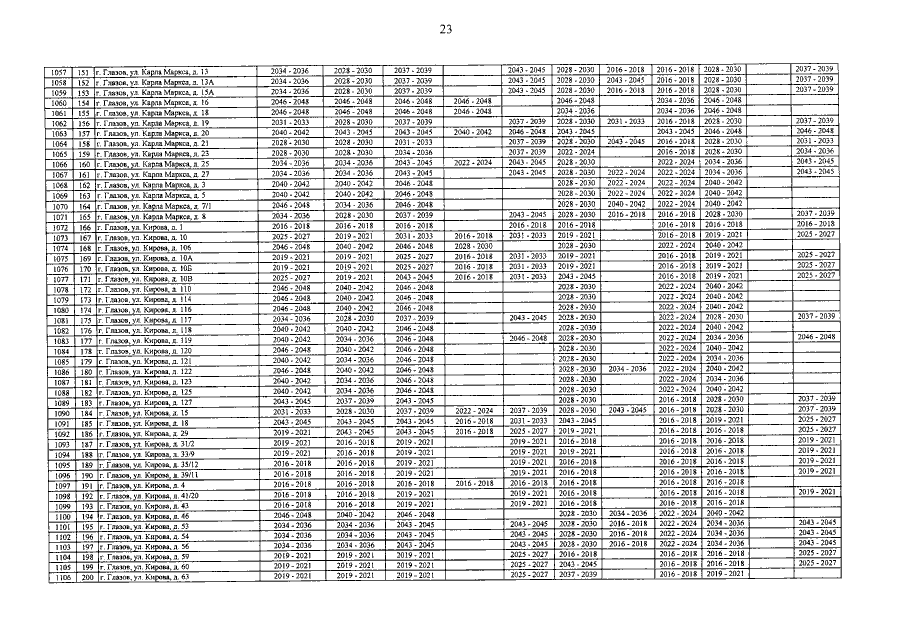
"О внесении изменения в постановление Правительства Удмуртской Республики от 19 мая 2014 года № 186 "Об утверждении Региональной программы капитального ремонта общего имущества в многоквартирных домах в Удмуртской Республике"
Номер опубликования: 1800201609200002
Дата опубликования: 20.09.2016
Страница №34 из 166:
Увеличить