Приказ Департамента Республики Саха (Якутия) по охране объектов культурного наследия от 24.09.2021 № 79-ОД
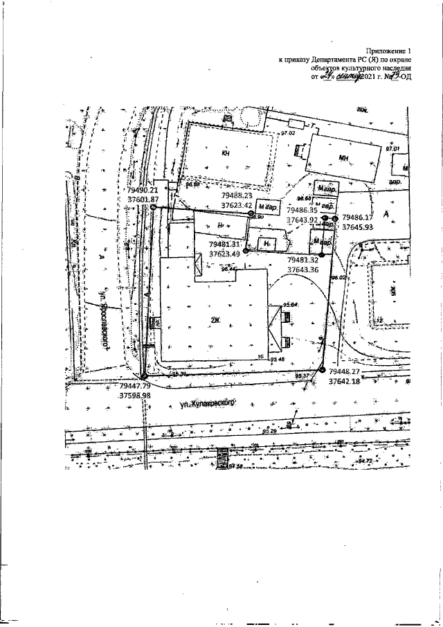
"Об утверждении границ территории объекта культурного наследия регионального значения "Здание Якутской городской мужской прогимназии"
(Зарегистрирован 07.10.2021 № RU140142022137)
"Об утверждении границ территории объекта культурного наследия регионального значения "Здание Якутской городской мужской прогимназии"
(Зарегистрирован 07.10.2021 № RU140142022137)
Номер опубликования: 1401202110110004
Дата опубликования:
11.10.2021
