Приказ Министерства культуры, национальной политики и архивного дела Республики Мордовия от 09.03.2023 № 98
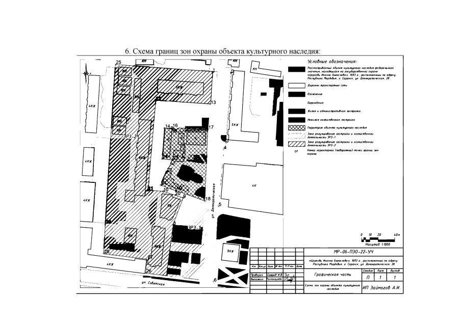
"Об утверждении зон охраны, режимов использования земель и требований к градостроительным регламентам в границах территории зон охраны объекта культурного наследия федерального значения "Церковь Иоанна Богослова"
"Об утверждении зон охраны, режимов использования земель и требований к градостроительным регламентам в границах территории зон охраны объекта культурного наследия федерального значения "Церковь Иоанна Богослова"
Номер опубликования: 1301202303140001
Дата опубликования:
14.03.2023
