Официальное опубликование правовых актов
ОФИЦИАЛЬНОЕ ОПУБЛИКОВАНИЕ
Приказ Министерства природных ресурсов и охраны окружающей среды Республики Коми от 25.03.2019 № 484
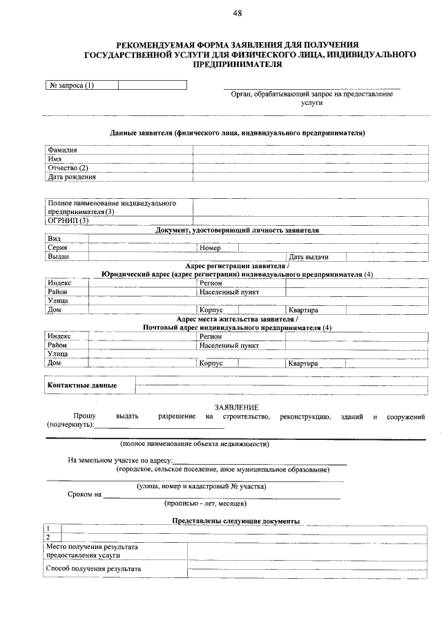
"Об утверждении административного регламента предоставления государственной услуги по выдаче разрешения на строительство в случае осуществления строительства, реконструкции объекта капитального строительства, строительство, реконструкцию которого планируется осуществлять в границах особо охраняемой природной территории республиканского значения"
Номер опубликования: 1101201903280001
Дата опубликования: 28.03.2019
Страница №48 из 61:
Увеличить