Официальное опубликование правовых актов
ОФИЦИАЛЬНОЕ ОПУБЛИКОВАНИЕ
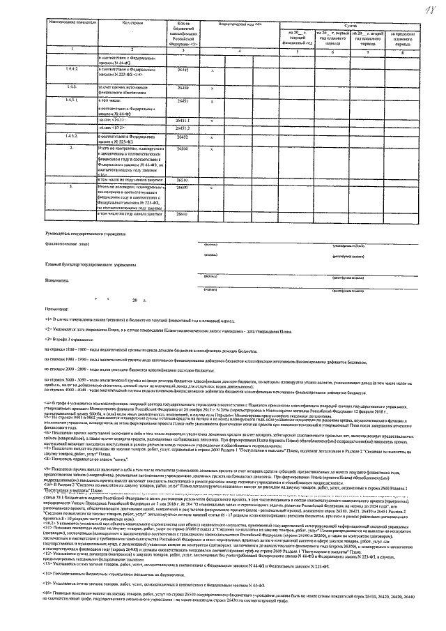
Приказ Министерства природных ресурсов и экологии Республики Карелия от 15.12.2022 № 2401
"Об утверждении Порядка составления и утверждения плана финансово-хозяйственной деятельности государственных бюджетных и автономных учреждений, подведомственных Министерству природных ресурсов и экологии Республики Карелия"
Номер опубликования: 1001202212160022
Дата опубликования: 16.12.2022
Страница №18 из 30:
Увеличить