Официальное опубликование правовых актов
ОФИЦИАЛЬНОЕ ОПУБЛИКОВАНИЕ
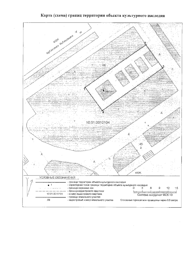
Приказ Управления по охране объектов культурного наследия Республики Карелия от 17.05.2021 № 344
"Об утверждении границ территории объекта культурного наследия регионального значения "Памятник Александру Сергеевичу Пушкину", 1966 г., расположенного по адресу: Республика Карелия, г. Петрозаводск, ул. Пушкинская"
Номер опубликования: 1001202105200014
Дата опубликования: 20.05.2021
Страница №4 из 4:
Увеличить