Приказ Управления по охране объектов культурного наследия Республики Карелия от 22.03.2021 № 170
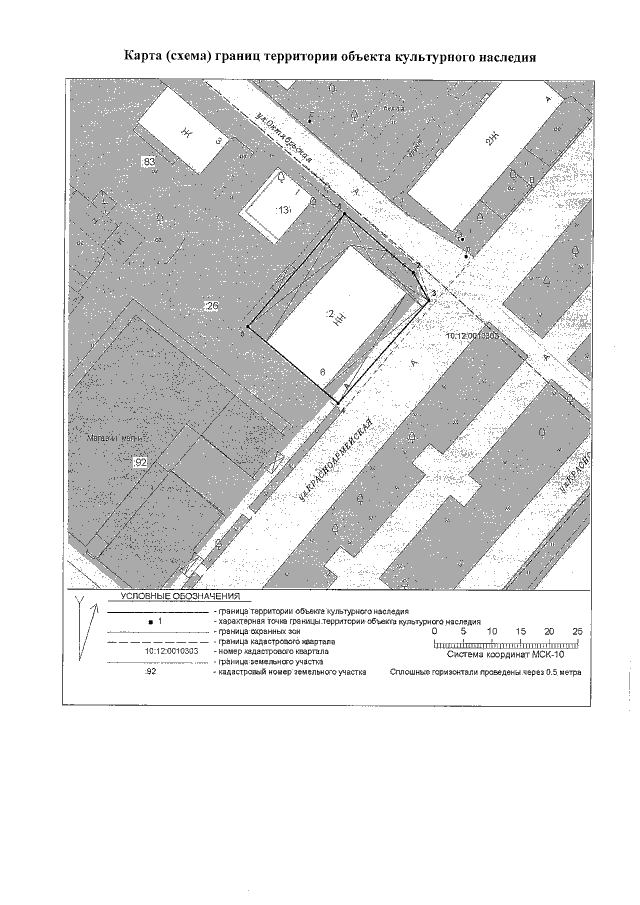
"Об утверждении границ территории объекта культурного наследия регионального значения "Банк", 1936 г., расположенного по адресу: Республика Карелия, Лахденпохский район, г. Лахденпохья, ул. Красноармейская, д. 6"
"Об утверждении границ территории объекта культурного наследия регионального значения "Банк", 1936 г., расположенного по адресу: Республика Карелия, Лахденпохский район, г. Лахденпохья, ул. Красноармейская, д. 6"
Номер опубликования: 1001202103250014
Дата опубликования:
25.03.2021
