Официальное опубликование правовых актов
ОФИЦИАЛЬНОЕ ОПУБЛИКОВАНИЕ
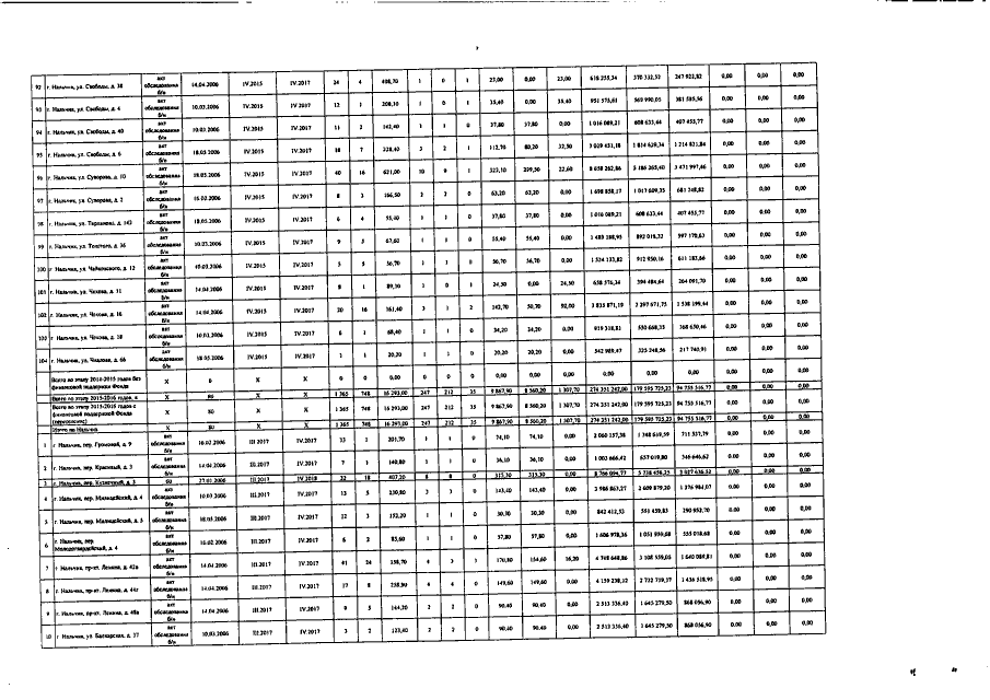
Постановление Правительства Кабардино-Балкарской Республики от 13.03.2017 № 36-ПП
"О внесении изменений в Республиканскую адресную программу "Переселение граждан из аварийного жилищного фонда в Кабардино-Балкарской Республике в 2013-2017 годах"
Номер опубликования: 0700201703150003
Дата опубликования: 15.03.2017
Страница №13 из 26:
Увеличить