Приказ Администрации Главы Республики Бурятия и Правительства Республики Бурятия от 07.12.2023 № 865д
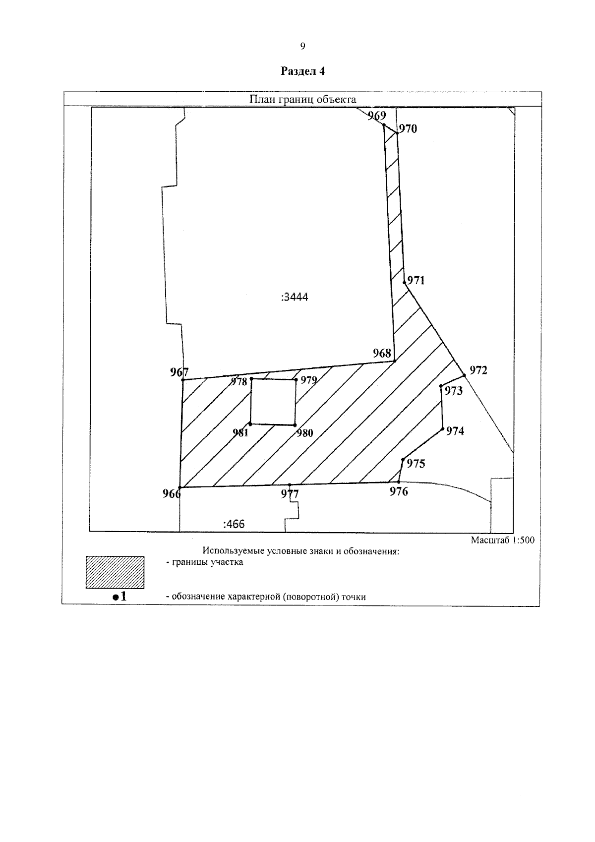
"О внесении изменений в приказ Администрации Главы Республики Бурятия и Правительства Республики Бурятия от 05.10.2023 № 633д "О включении выявленного объекта культурного наследия "Торговый посад г. Верхнеудинска в устье р. Уды", расположенного по адресу: Республика Бурятия, г. Улан-Удэ (в границах улиц Советская, Профсоюзная, Балтахинова, Набережная, Удинской и Селенгинской набережных), в единый государственный реестр объектов культурного наследия (памятников истории и культуры) народов Российской Федерации в качестве объекта культурного наследия регионального значения (достопримечательное место), об утверждении границ его территории, требований к осуществлению деятельности и градостроительным регламентам в границах его территории и утверждении предмета охраны"
(Зарегистрирован 14.12.2023 № 032023508)
"О внесении изменений в приказ Администрации Главы Республики Бурятия и Правительства Республики Бурятия от 05.10.2023 № 633д "О включении выявленного объекта культурного наследия "Торговый посад г. Верхнеудинска в устье р. Уды", расположенного по адресу: Республика Бурятия, г. Улан-Удэ (в границах улиц Советская, Профсоюзная, Балтахинова, Набережная, Удинской и Селенгинской набережных), в единый государственный реестр объектов культурного наследия (памятников истории и культуры) народов Российской Федерации в качестве объекта культурного наследия регионального значения (достопримечательное место), об утверждении границ его территории, требований к осуществлению деятельности и градостроительным регламентам в границах его территории и утверждении предмета охраны"
(Зарегистрирован 14.12.2023 № 032023508)
Номер опубликования: 0301202312150001
Дата опубликования:
15.12.2023
