Официальное опубликование правовых актов
ОФИЦИАЛЬНОЕ ОПУБЛИКОВАНИЕ
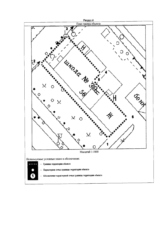
Приказ Администрации Главы Республики Бурятия и Правительства Республики Бурятия от 08.12.2020 № 409д
"Об утверждении границ территорий объектов культурного наследия, расположенных в Республике Бурятия, и о внесении изменений в некоторые нормативные правовые акты Администрации Главы Республики Бурятия и Правительства Республики Бурятия"
(Зарегистрирован 09.12.2020 № 032020502)
Номер опубликования: 0301202012220036
Дата опубликования: 22.12.2020
Страница №45 из 75:
Увеличить