Официальное опубликование правовых актов
ОФИЦИАЛЬНОЕ ОПУБЛИКОВАНИЕ
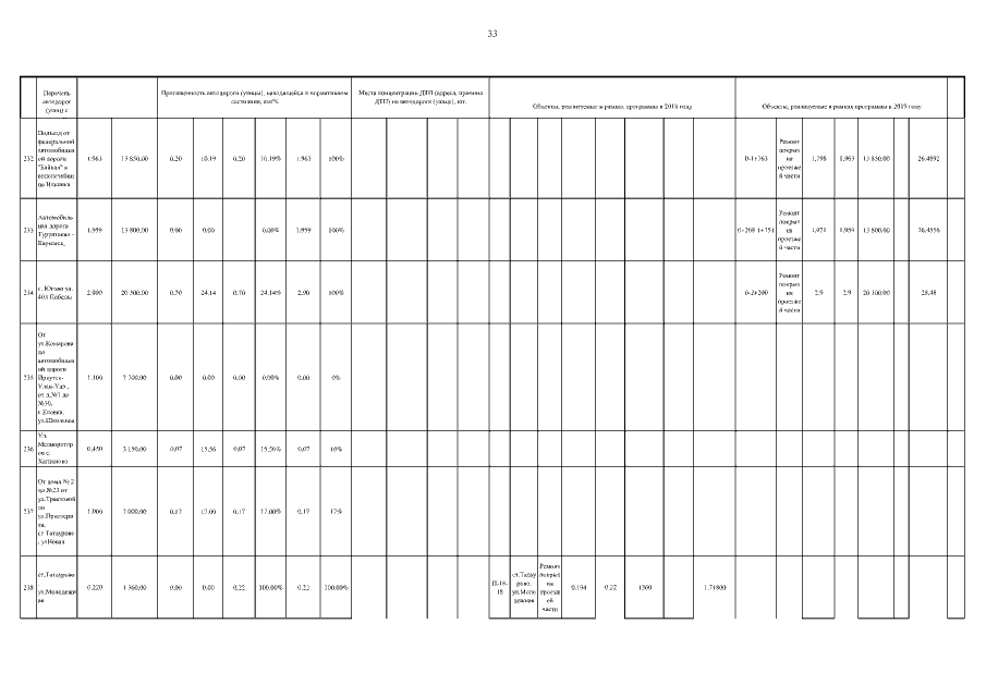
Постановление Правительства Республики Бурятия от 25.01.2018 № 29
"О внесении изменений в постановление Правительства Республики Бурятия от 09.04.2013 № 179 "О Государственной программе Республики Бурятия "Развитие транспорта, энергетики и дорожного хозяйства"
Номер опубликования: 0300201801290005
Дата опубликования: 29.01.2018
Страница №62 из 118:
Увеличить