Официальное опубликование правовых актов
ОФИЦИАЛЬНОЕ ОПУБЛИКОВАНИЕ
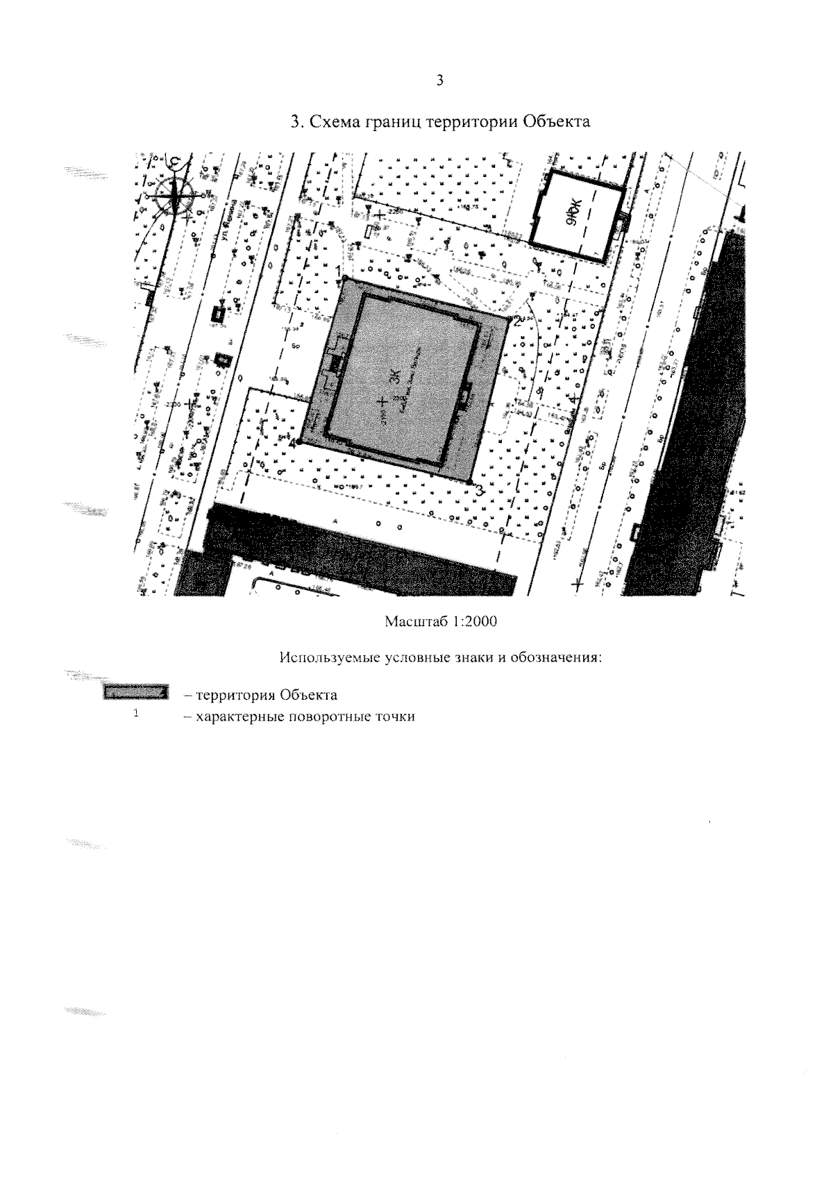
Приказ Управления по государственной охране объектов культурного наследия Республики Башкортостан от 13.01.2026 № 1
"Об утверждении границ и режима использования территории выявленного объекта культурного наследия "Библиотека", расположенного по адресу: Республика Башкортостан, г. Уфа, ул. Ленина, д. 4"
(Зарегистрирован 20.01.2026 № 25758)
Номер опубликования: 0201202601270001
Дата опубликования: 27.01.2026
Страница №5 из 6:
Увеличить