Официальное опубликование правовых актов
ОФИЦИАЛЬНОЕ ОПУБЛИКОВАНИЕ
Приказ Управления по государственной охране объектов культурного наследия Республики Башкортостан от 23.04.2025 № 224
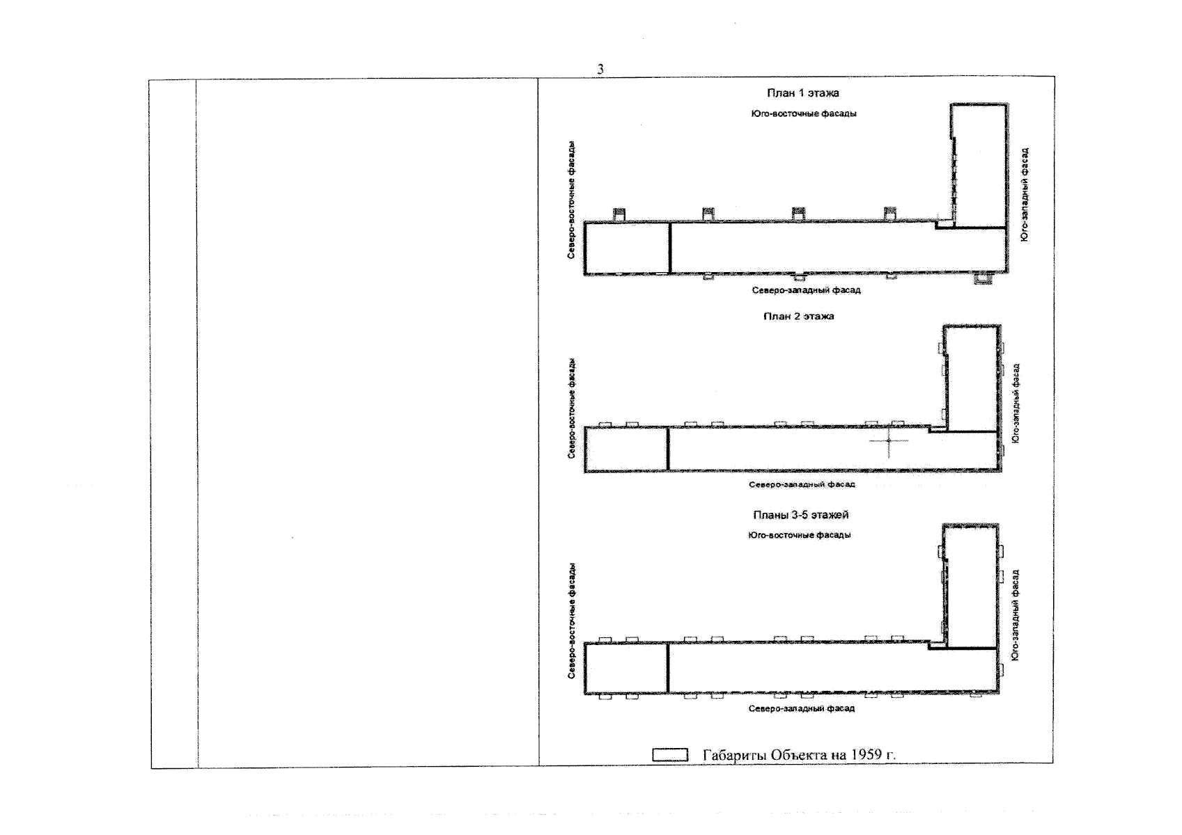
"О включении выявленного объекта культурного наследия "5-этажный жилой дом", 1950-е гг., расположенного по адресу: Республика Башкортостан, г. Уфа, ул. Ленина, д. 72, в единый государственный реестр объектов культурного наследия (памятников истории и культуры) народов Российской Федерации в качестве объекта культурного наследия регионального значения, утверждении его предмета охраны, границ и режима использования территории"
(Зарегистрирован 19.05.2025 № 24321)
Номер опубликования: 0201202505270002
Дата опубликования: 27.05.2025
Страница №13 из 32:
Увеличить