Официальное опубликование правовых актов
ОФИЦИАЛЬНОЕ ОПУБЛИКОВАНИЕ
Приказ Управления по государственной охране объектов культурного наследия Республики Башкортостан от 01.08.2023 № 229
"Об утверждении предмета охраны объекта культурного наследия (памятника истории и культуры) регионального значения "Дом техники", 1953 г., расположенного по адресу: Республика Башкортостан, г. Октябрьский, проспект Ленина, 4"
(Зарегистрирован 21.08.2023 № 20605)
Номер опубликования: 0201202308280001
Дата опубликования: 28.08.2023
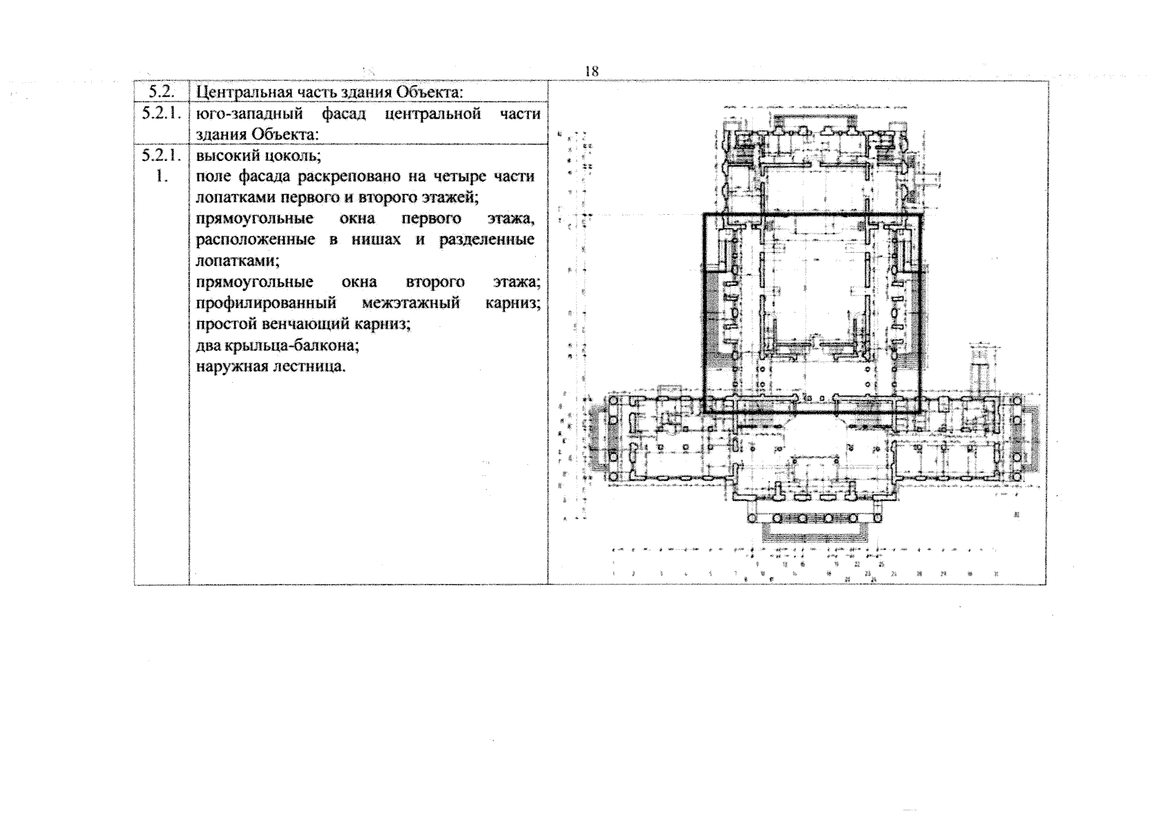
Страница №19 из 38:
Увеличить