Официальное опубликование правовых актов
ОФИЦИАЛЬНОЕ ОПУБЛИКОВАНИЕ
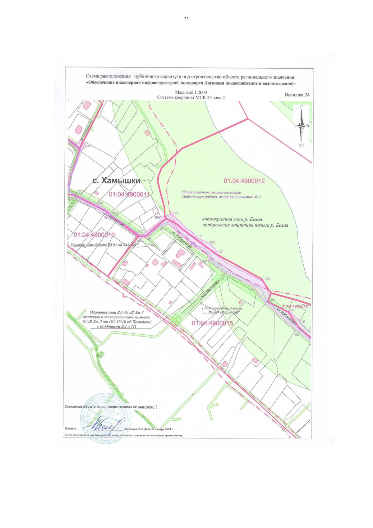
Приказ Комитета Республики Адыгея по имущественным отношениям от 06.05.2024 № 158-ОД
"О внесении изменений в приказ Комитета Республики Адыгея по имущественным отношениям от 24.01.2024 года N 17-ОД "Об установлении публичного сервитута с целью размещения объекта регионального значения"
(Зарегистрирован 23.05.2024 № 24-202)
Номер опубликования: 0101202405290012
Дата опубликования: 29.05.2024
Страница №27 из 102:
Увеличить