Официальное опубликование правовых актов
ОФИЦИАЛЬНОЕ ОПУБЛИКОВАНИЕ
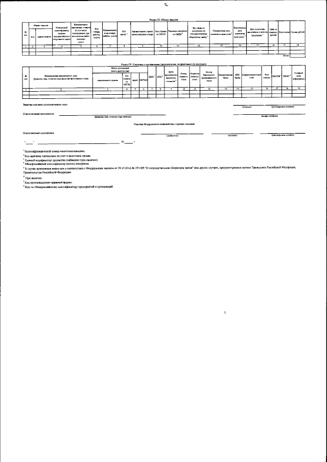
Приказ Федерального казначейства от 12.01.2026 № 1н
"О внесении изменений в Порядок формирования и направления заказчиком сведений, подлежащих включению в реестр контрактов, содержащий сведения, составляющие государственную тайну, формирования и направления запросов о предоставлении сведений из указанного реестра, формирования и направления Федеральным казначейством выписок из указанного реестра и протокола, а также форм указанных документов, утвержденный приказом Федерального казначейства от 25 ноября 2024 г. № 17н"
(Зарегистрирован 10.02.2026 № 85288)
Номер опубликования: 0001202602110005
Дата опубликования: 11.02.2026
Страница №9 из 15:
Увеличить