Официальное опубликование правовых актов
ОФИЦИАЛЬНОЕ ОПУБЛИКОВАНИЕ
Приказ Министерства культуры Российской Федерации от 28.11.2024 № 2412
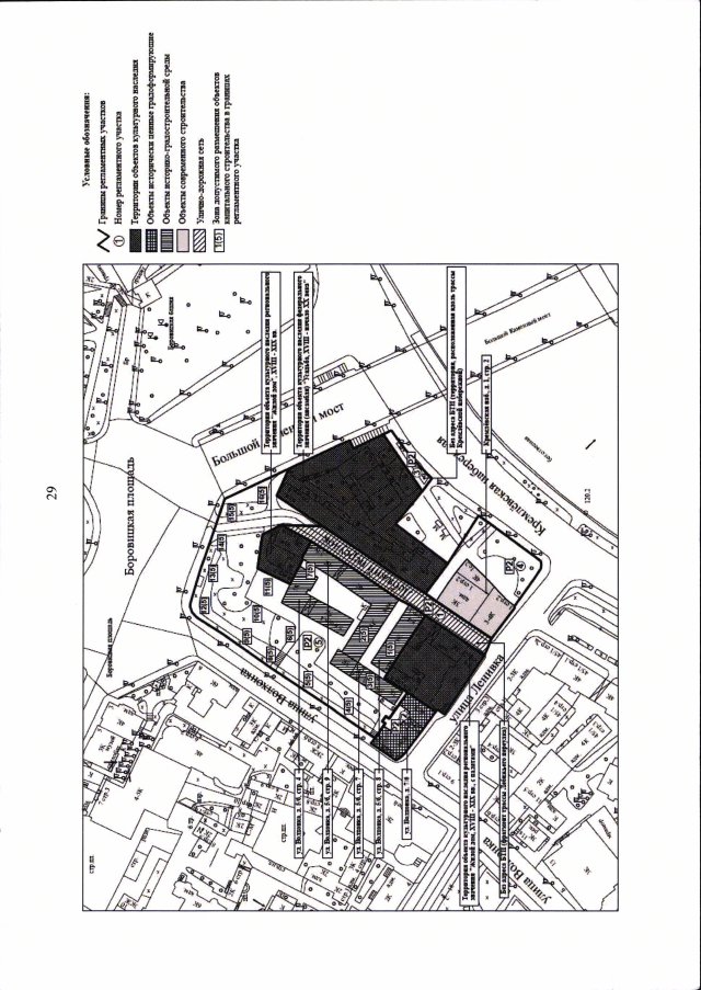
"Об утверждении особых режимов использования земель и требований к градостроительным регламентам в границах охранной зоны объекта культурного наследия (памятника истории и культуры) народов Российской Федерации федерального значения "Московский Кремль - ансамбль памятников архитектуры ХV-ХVI, ХVII, ХVIII, ХIХ вв.", ХV-ХVI, ХVII, ХVIII, ХIХ вв. (г. Москва), включенного в Список всемирного наследия, в границах кварталов №№ 28, 29 Центрального административного округа города Москвы, за исключением земельного участка с кадастровым номером 77:01:0001016:1548"
(Зарегистрирован 14.07.2025 № 82909)
Номер опубликования: 0001202507150006
Дата опубликования: 15.07.2025
Страница №29 из 29:
Увеличить