Приказ Министерства культуры Российской Федерации от 10.10.2022 № 1886
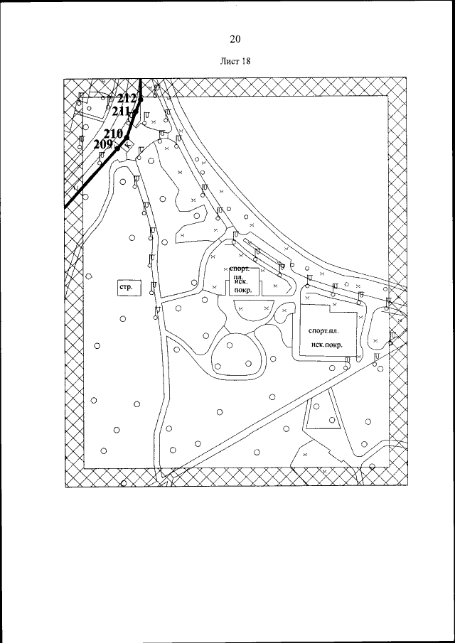
"О включении выявленных объектов культурного наследия в единый государственный реестр объектов культурного наследия (памятников истории и культуры) народов Российской Федерации в качестве объектов культурного наследия федерального значения в составе объекта культурного наследия федерального значения "Ансамбль усадьбы Царицыно", конец XVII — начало XIX вв. (г. Москва, Дольская ул., д. 1, д. 1, стр. 2, 3, 4, 5, 6, 7, 13, 16, 17, д. 2, стр. 1) и утверждении границ их территории"
(Зарегистрирован 21.11.2022 № 71035)
"О включении выявленных объектов культурного наследия в единый государственный реестр объектов культурного наследия (памятников истории и культуры) народов Российской Федерации в качестве объектов культурного наследия федерального значения в составе объекта культурного наследия федерального значения "Ансамбль усадьбы Царицыно", конец XVII — начало XIX вв. (г. Москва, Дольская ул., д. 1, д. 1, стр. 2, 3, 4, 5, 6, 7, 13, 16, 17, д. 2, стр. 1) и утверждении границ их территории"
(Зарегистрирован 21.11.2022 № 71035)
Номер опубликования: 0001202211210079
Дата опубликования:
21.11.2022
