Официальное опубликование правовых актов
ОФИЦИАЛЬНОЕ ОПУБЛИКОВАНИЕ
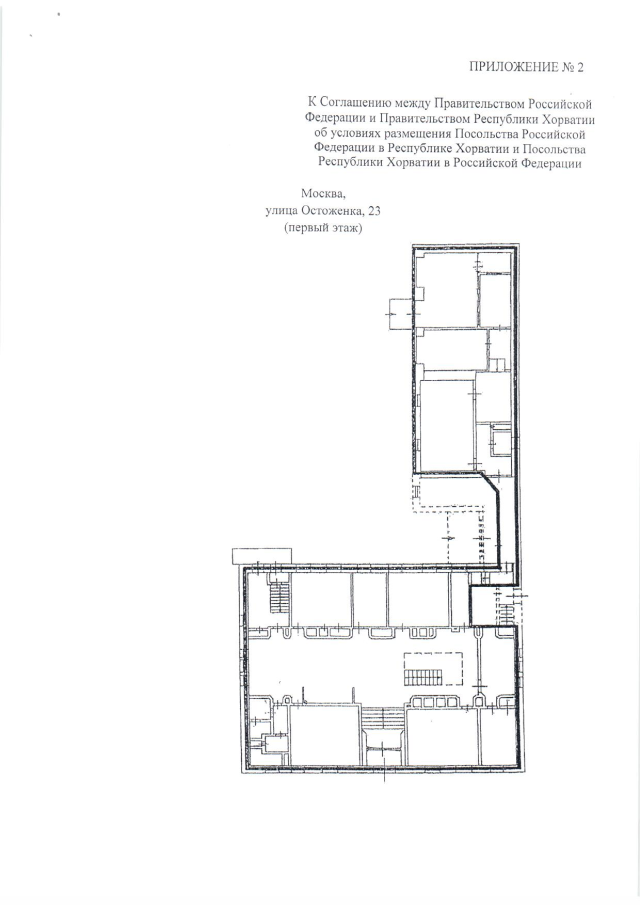
Соглашение между Правительством Российской Федерации и Правительством Республики Хорватии об условиях размещения Посольства Российской Федерации в Республике Хорватии и Посольства Республики Хорватии в Российской Федерации от 25 июня 2020 г.
(вступило в силу 27 октября 2020 г.)
Номер опубликования: 0001202011170017
Дата опубликования: 17.11.2020
Страница №8 из 9:
Увеличить