Официальное опубликование правовых актов
ОФИЦИАЛЬНОЕ ОПУБЛИКОВАНИЕ
Приказ Министерства культуры Российской Федерации от 21.06.2019 № 815
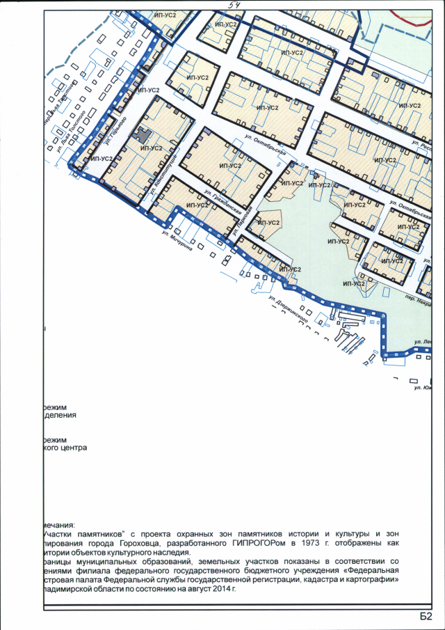
"Об утверждении требований к градостроительным регламентам в границах территории исторического поселения федерального значения город Гороховец Владимирской области"
(Зарегистрирован 19.07.2019 № 55313)
Номер опубликования: 0001201907190007
Дата опубликования: 19.07.2019
Страница №54 из 56:
Увеличить