Официальное опубликование правовых актов
ОФИЦИАЛЬНОЕ ОПУБЛИКОВАНИЕ
Приказ Министерства культуры Российской Федерации от 15.02.2019 № 157
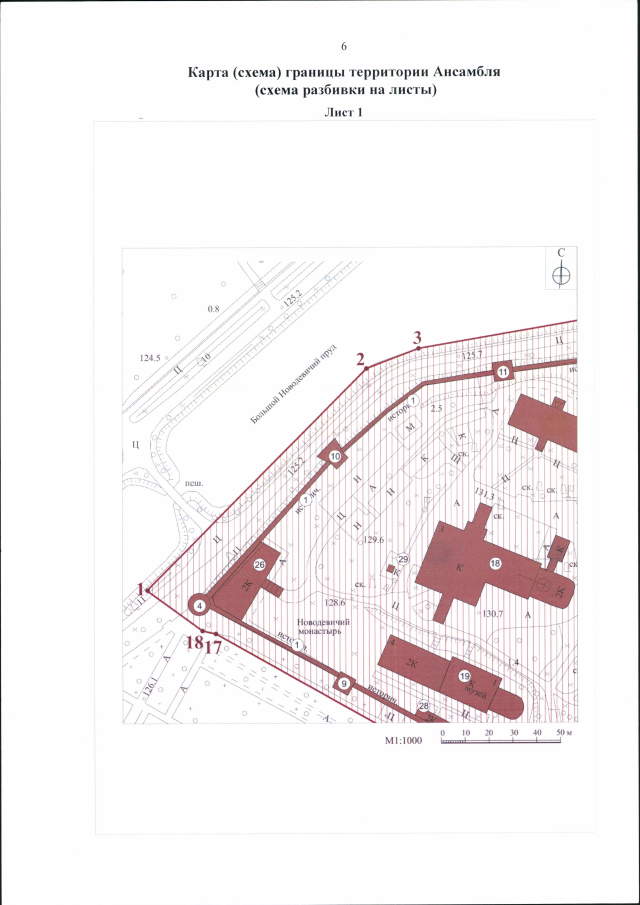
"Об утверждении границ и режима использования территории объекта культурного наследия федерального значения "Ансамбль Новодевичьего монастыря", 1524-1525 гг.‚ расположенного по адресу: г. Москва, Новодевичий проезд, д. 1"
(Зарегистрирован 09.04.2019 № 54322)
Номер опубликования: 0001201904100010
Дата опубликования: 10.04.2019
Страница №6 из 13:
Увеличить