Официальное опубликование правовых актов
ОФИЦИАЛЬНОЕ ОПУБЛИКОВАНИЕ
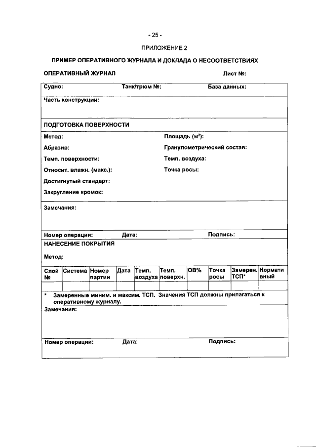
Стандарт качества защитных покрытий грузовых нефтяных танков на танкерах для сырой нефти
(вступили в силу для Российской Федерации 1 января 2012 года)
Номер опубликования: 0001201712270051
Дата опубликования: 27.12.2017
Страница №25 из 27:
Увеличить