Официальное опубликование правовых актов
ОФИЦИАЛЬНОЕ ОПУБЛИКОВАНИЕ
Приказ Министерства культуры Российской Федерации от 01.06.2017 № 901
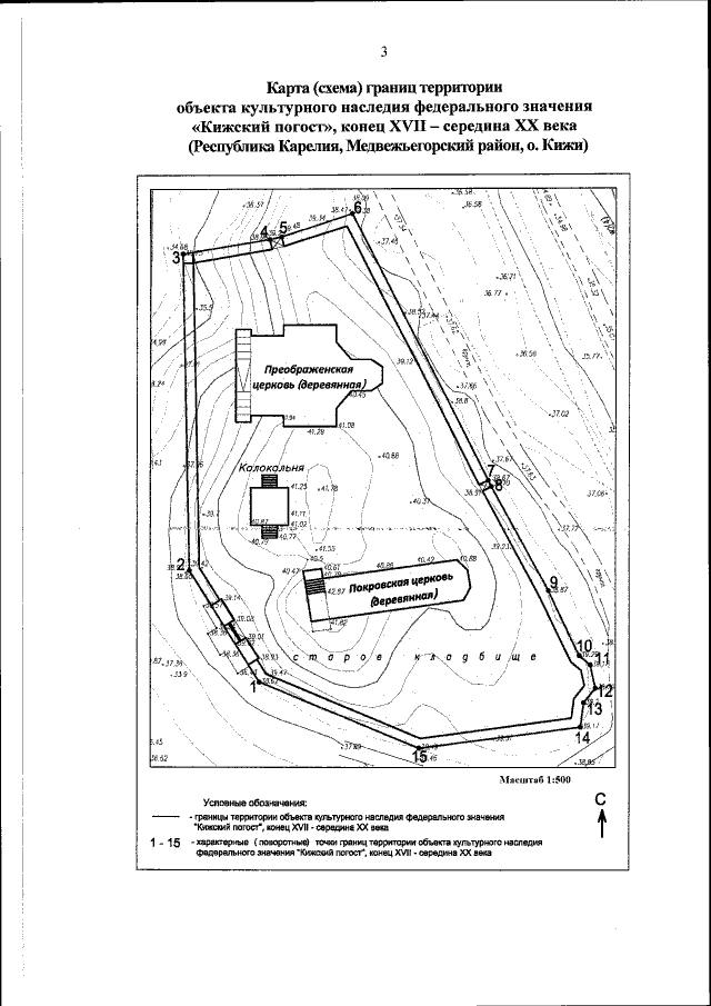
"О включении выявленного объекта культурного наследия "Кижский погост, конец XVII-середина XX века (Республика Карелия, Медвежьегорский район, о. Кижи) в единый государственный реестр объектов культурного наследия (памятников истории и культуры) народов Российской Федерации в качестве объекта культурного наследия федерального значения и утверждении границ его территории"
(Зарегистрирован 26.06.2017 № 47172)
Номер опубликования: 0001201706270060
Дата опубликования: 27.06.2017
Страница №5 из 6:
Увеличить