Официальное опубликование правовых актов
ОФИЦИАЛЬНОЕ ОПУБЛИКОВАНИЕ
Постановление Правительства Севастополя от 12.10.2022 № 502-ПП
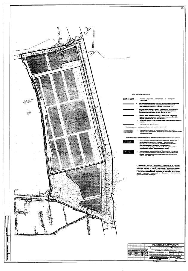
"Об утверждении документации по планировке территории "Проект планировки и проект межевания части территории кадастрового квартала 91:04:032001 в с. Осипенко, г. Севастополь"
Номер опубликования: 9200202210210001
Дата опубликования: 21.10.2022
Страница №47 из 59:
Увеличить