Приказ Министерства градостроительной политики Калининградской области от 17.08.2022 № 327
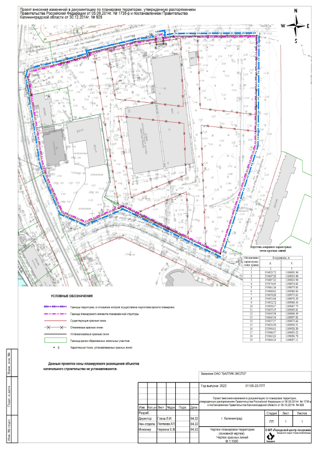
"Об утверждении проекта внесения изменений в документацию по планировке территории, утвержденную распоряжением Правительства Российской Федерации от 05 сентября 2014 года № 1735-р и постановлением Правительства Калининградской области от 30 декабря 2014 года № 929"
"Об утверждении проекта внесения изменений в документацию по планировке территории, утвержденную распоряжением Правительства Российской Федерации от 05 сентября 2014 года № 1735-р и постановлением Правительства Калининградской области от 30 декабря 2014 года № 929"
Номер опубликования: 3901202208190051
Дата опубликования:
19.08.2022
