Официальное опубликование правовых актов
ОФИЦИАЛЬНОЕ ОПУБЛИКОВАНИЕ
Приказ Министерства градостроительной политики Калининградской области от 17.08.2022 № 328
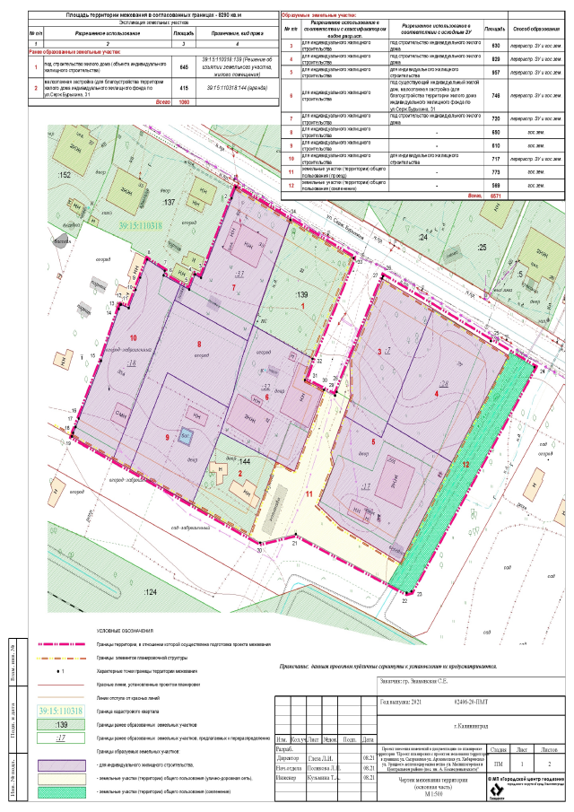
"Об утверждении проекта внесения изменений в документацию по планировке территории, утвержденную постановлением администрации городского округа "Город Калининград" от 02 октября 2013 года № 1509"
Номер опубликования: 3901202208190046
Дата опубликования: 19.08.2022
Страница №14 из 19:
Увеличить