Приказ Агентства по архитектуре, градостроению и перспективному развитию Калининградской области от 10.02.2021 № 40
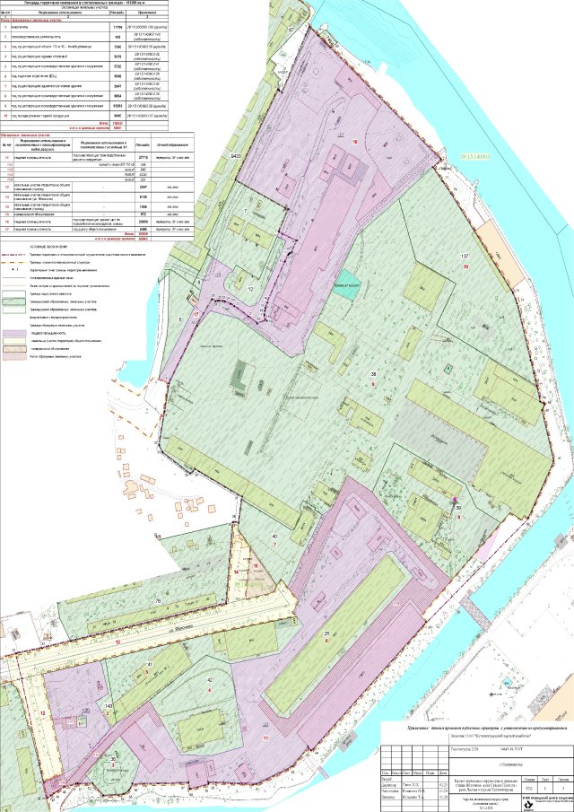
"Об утверждении проекта межевания территории в границах улицы Яблочная – река Старая Преголя – река Лесная в городе Калининграде"
"Об утверждении проекта межевания территории в границах улицы Яблочная – река Старая Преголя – река Лесная в городе Калининграде"
Номер опубликования: 3901202102170007
Дата опубликования:
17.02.2021
