Официальное опубликование правовых актов
ОФИЦИАЛЬНОЕ ОПУБЛИКОВАНИЕ
Постановление Администрации Волгоградской области от 01.03.2022 № 111-п
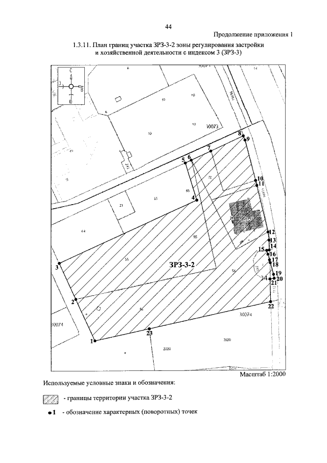
"Об установлении зон охраны объекта культурного наследия федерального значения "Мамаев курган" - место ожесточенных боев в 1942-1943 гг.", расположенного по адресу: Волгоградская область, Волгоград, Мамаев курган, и об утверждении режимов использования земель и требований к градостроительным регламентам в границах территорий указанных зон"
Номер опубликования: 3400202203010002
Дата опубликования: 01.03.2022
Страница №46 из 91:
Увеличить